Horní plavební kanál Roudnice nad Labem - povodňová ochrana

Horní plavební kanál Roudnice nad Labem - povodňová ochrana

Ústecký kraj, Roudnice nad Labem
- Labe
|
809.10 Říční km
Dokončená stavba

Základní informace

Zahájení realizace stavby
19.09.2005
Ukončení realizace stavby
31.12.2005
Zhotovitel
Zakládání staveb a.s.
Dobronická 1371, 148 26 Praha 4
Správce a provozovatel
Povodí Labe, státní podnik
Víta Nejedlého 951, 500 03 Hradec Králové
Projektant
TRANSCONSULT s. r. o.
Nerudova 37, 500 02 Hradec Králové

Financování

Státní fond dopravní infrastruktury
1,627 mil. Kč
EU - Operační program infrastruktury
0,866 mil. Kč

Účel projektu

  • ochrana a vyvazování plavidel za velkých vod
  • bezpečnost vlastních plavidel v chráněném místě, hlídkujícího personálu na plavidlech a bezpečnost staveb nacházejících se v korytě vodního toku a v jeho bezprostřední blízkosti

Popis projektu

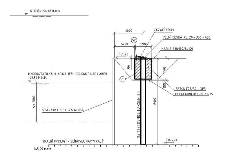
Nové vyvazovací prvky jsou umístěny na březích horního plavebního kanálu Labe v Roudnici nad Labem, říční km 27,865 – 28,040. Na levém břehu (v ulici Nábřežní) byla navržena 2 lodní stání, které tvoří 6 vyvazovacích kruhů umístěných podél místní komunikace, těsně za hranou břehu nebo přímo v jeho svahu. Na pravém břehu jsou za štětovou stěnou 3 vázací kruhy, které budou využívány pro příčné vyvazování plavidel za vysokých vodních stavů.

Stav projektu

Zahájení projektu
19.09.2005
Dokončení projektu
31.12.2005
0%
100%