Ochranný přístav Nymburk, povodňová ochrana

Ochranný přístav Nymburk, povodňová ochrana

Středočeský kraj, Nymburk
- Labe
|
896.20 Říční km
Dokončená stavba

Základní informace

Zahájení realizace stavby
01.11.2005
Ukončení realizace stavby
31.08.2006
Zhotovitel
Zakládání staveb a.s.
Dobronická 1371, 148 26 Praha 4
Správce a provozovatel
Povodí Labe, státní podnik
Víta Nejedlého 951, 500 03 Hradec Králové
Projektant
TRANSCONSULT s. r. o.
Nerudova 37, 500 02 Hradec Králové

Financování

Státní fond dopravní infrastruktury
10797000
EU - Operační program infrastruktury
7503000

Účel projektu

Bezpečná ochrana plavidel za velkých vod, dimenzovaná na maximální povodně (Q100). Zajištění bezpečného vyvázání vlastních plavidel, eliminace rizika plynoucího z možného utržení plavidel pro stavby v korytě vodního toku i v jeho bezprostřední blízkosti a pro hlídkující personál na plavidlech. Dále dojde ke zlepšení podmínek pro přistávání osobních lodí a malých plavidel za běžných plavebních stavů.

Základní parametry stavby

  • 10 ks vázacích kruhů po obvodu přístavního bazénu.
  • Úprava přístavního bazénu (prohrábka dna, zajištění stability a opevnění svahů, vybudování 2 ks schodišť).
  • Nástupiště osobních lodí (obnova kamenné zdi, stezka pro pěší, vyvazovací pacholata 3 ks).
  • Rekonstrukce osvětlení - 3 ks.

Popis projektu

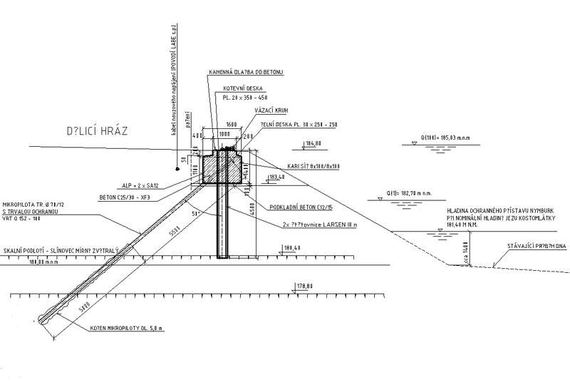
Po obvodu přístavního bazénu v ochranném přístavu Nymburk je vybudováno 10 ks vysokovodních vyvazovacích prvků - vázacích kruhů, z toho 6 ks kruhů je umístěno na hrázi oddělující přístav od toku Labe, 1 ks na severovýchodním břehu přístavního bazénu a 3 ks na jeho severozápadním břehu. Rozmístění vázacích kruhů po obvodu přístavního bazénu umožňuje i příčné vyvazování plavidel a tím využití celé vodní plochy přístavního bazénu. Základním konstrukčním prvkem vázacích kruhů je zaberaněný svařenec štětovnic Larssen IIIn, délky cca 4,3 - 6,0 m (v závislosti na hloubce skalního podloží), ke kterému je v horní části přivařena ocelová kotevní deska. Horní část svařence je obetonována základovou patkou o půdorysných rozměrech 1,6 x 1,6 m. Základová patka je provedena ze železobetonu, viditelná plocha patky je ukončena kamennou dlažbou. Dostatečná stabilita svařence štětovnic je zajištěna dvojicí šikmých mikropilot s kořenem vytvořeným ve skalním podloží. Mikropiloty tvoří ocelové trubky osazené do vrtů, kořen kotvy má délku 5,0 m a je dimenzován na tahovou sílu 160 kN. Vlastní dvojitý vázací kruh je přivařen ke kotevní desce přes oko, které zajišťuje jeho pohyb. Vybudování vázacích kruhů si vynutilo přeložku kabelu 22 kV, která byla provedena v délce 110 m. Součástí stavby je i prohrábka dna přístavního bazénu na plavební hloubku 2,6 m, tzn. na úroveň 178,80 m n. m. Celkem bylo vytěženo cca 4 950 m zeminy. Stabilita břehů byla po prohloubení dna zajištěna přisypáním paty stávajícího kamenného záhozu v délce 440 m. Dále byla provedena úprava kamenného záhozu na březích bazénu spolu se zpevněním břehů vegetačními tvárnicemi. Na severozápadním břehu přístavního bazénu byla vybudována 2 monolitická
železobetonová schodiště. V čele bazénu byla provedena obnova nástupní hrany pro osobní lodě v délce 55,0 m. Hrana byla vytvořena ze stávajících pískovcových kvádrů, které se částečně doplnily novými. Horní hrana zdi je v úrovni 182,70 m n. m., která odpovídá hladině při průtoku Q1. Pro možnost vyvazování osobních plavidel za běžných plavebních podmínek jsou na přístavní hraně osazena 3 typová pacholata únosnosti 100 kN. Podél celé přístavní hrany je zřízena stezka z lomového kamene pro pěší, která navazuje na stávající asfaltovou komunikaci. Na dělící hrázi mezi přístavním bazénem a tokem Labe byla provedena výměna osvětlovacích stožárů, kdy 3 ks stávajících silničních stožárů byly nahrazeny stožáry sadovými.

Bezpečná ochrana plavidel za velkých vod, dimenzovaná na maximální povodně (Q100). Zajištění bezpečného vyvázání vlastních plavidel, eliminace rizika plynoucího z možného utržení plavidel pro stavby v korytě vodního toku i v jeho bezprostřední blízkosti a pro hlídkující personál na plavidlech. Dále dojde ke zlepšení podmínek pro přistávání osobních lodí a malých plavidel za běžných plavebních stavů.

Stav projektu

Zahájení projektu
01.11.2005
Dokončení projektu
31.08.2006
0%
100%