Přístav Děčín - Rozbělesy, povodňová ochrana

Přístav Děčín - Rozbělesy, povodňová ochrana

Ústecký kraj, Děčín
- Labe
|
741.90 Říční km
Dokončená stavba

Základní informace

Zahájení realizace stavby
01.08.2005
Ukončení realizace stavby
30.06.2005
Zhotovitel
Zakládání staveb a.s.
Dobronická 1371, 148 26 Praha 4
Správce a provozovatel
Povodí Labe, státní podnik
Víta Nejedlého 951, 500 03 Hradec Králové
Projektant
TRANSCONSULT s. r. o.
Nerudova 37, 500 02 Hradec Králové

Financování

Státní fond dopravní infrastruktury
28,8 mil.
EU - Operační program infrastruktury
43,2 mil.

Účel projektu

Bezpečná ochrana plavidel za velkých vod, dimenzovaná na maximální povodně (odpovídající roku 2002).

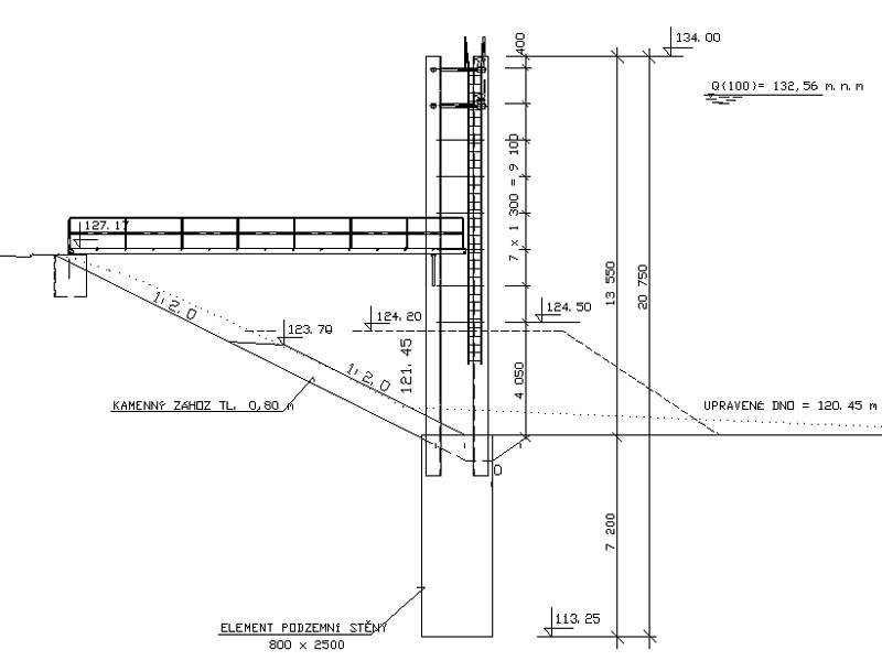
  • Vybudování 12 ks vysokovodních vyvazovacích pevných dalb tvořících stání v délce 330 m (4 lodní polohy).
    • ukotvení do podzemní stěny
    • výška dalb 13,5 m
    • dalby ze 4 ocelových trub
    • plošiny s pacholaty v 9 výškových úrovních
  • Zvýšení a zesílení 4 ks stávajících dalb (1 lodní poloha).
    • zvýšení z 8 m na 13,75 m a zesílení šikmými vzpěrami
  • Spojení dalb se břehem instalací lávek z úrovně vnitropřístavní komunikace.
  • Zřízení 3 vázacích kruhů na dělící hrázi pro pomocné šikmé vyvazování plavidel

Popis projektu

V čele bazénu bylo vybudováno 12 ks vysokovodních vyvazovacích pevných dalb v osové vzdálenosti 30 m, které tak vytvoří vyvazovací stání v délce 330 m pro 4 lodní polohy. Pátá byla zřízena zvýšením a zesílením 4 ks stávajících dalb mezi vjezdem do bazénu a přístavní zdí. Spojení dalb s břehem je zajištěno lávkami z úrovně vnitropřístavní komunikace.
Na dělící hrázi mezi Labem a přístavním bazénem jsou zřízeny 3 vázací kruhy jejichž konstrukci tvoří v horní části obetonavané zaberaněné svařence štětovnic. Vázací kruhy jsou přivařeny k čelní desce připevněné ke štětovnicím v úrovni povrchu hráze.
V místech stání byla v rámci úpravy paty svahu vytěžena zemina v celkové kubatuře 6 tis. m3.

Stav projektu

Zahájení projektu
01.08.2005
Dokončení projektu
30.06.2005
0%
100%